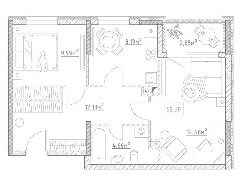
Двухкомнатная квартира 52,30 м2 по ул. Центральная 23 за 4450000 руб.

Двухкомнатная квартира по ул. Центральная, 23 в Пензе
Цена 4 450 000 р. (85 086 р./м2)
Подать заявку на ипотеку
Район Засечное
Адрес Центральная, 23
Этаж 2/9
Площадь общая 52,3 м2, жилая 24,47 м2, кухни 19 м2
Кол-во комнат Двухкомнатная
Жилой комплекс «Мой город» - это новый уютный микрорайон в Засечном, в непосредственной близости с городом Пенза. Он включает в себя 7 домов, первый из которых построен. В квартирах «Моего города» продуманно используется каждый квадратный метр, а ценовая политика строится на принципах доступности и разумной достаточности. Пространство каждой квартиры впечатляет не только панорамным остеклением лоджий и большими окнами, но и своей функциональностью. Например, в каждой квартире предусмотрена ниша для гардеробной - такое решение сегодня является неотъемлемой частью современной квартиры Проектируя «Мой город», застройщик стремился к тому, чтобы жилой комплекс имел свой характер и запоминающийся облик, а окружающий его природный ландшафт был изящно огранён, как это принято в лучших парках. Проект решён в стиле современной архитектурной традиции европейских городов – с особым вниманием к натуральным материалам, текстурам и фактурам в различных видах и сочетаниях. В данном жилом комплексе «Мой город» реализован принцип «Двор без машин». Вы можете не беспокоиться об играющих во дворе детях. Благоприятная экология – отличительная черта с. Засечное, в которой строится жилой комплекс. Обилие зелени, свежий воздух, экологичные материалы и новые зелёные насаждения создадут благоприятные условия прекрасного самочувствия жителей. А чтобы каждый мог поддержать правильный образ жизни с удовольствием и максимальным комфортом, на территории комплекса будет построена необходимая инфраструктура для полезных физических нагрузок. Жизнь с «Моём городе» позволит вам чувствовать себя одновременно и в мегаполисе, и на природе. Собственный зелёный сквер, связывающий территорию комплекса, прекрасное место для ежедневных прогулок. Дворы скрыты от шума и пыли. Детей ждёт современная игровая площадка, условно поделённая на две части: для малышей и детей среднего и старшего возраста. Почитать книгу или отдохнуть от суеты можно будет в привычных зонах, которые удалены от спортивных площадок и зон активного отдыха. Инфраструктура района ЖК Мой город находится в районе с развитой социальной и транспортной инфраструктурой. В шаговой доступности находятся остановки общественного транспорта, супермаркеты и строительные магазины, аптека, детский сад и школа, администрация и МФЦ, почтовое отделение, а также врачебная амбулатория. Застройщик - ООО "Специализированный застройщик "Мой город" Проектная декларация на сайте наш.дом.рф Атлас недвижимость, с Вами с 2001 года. Номер в базе: J4006L24229
Описание дома
Этажность дома 9
Объявление № 16809902
Дата подачи:
31 декабря 2023 г. 3:16
Дата обновления:
31 декабря 2023 г. 3:16
Просмотров 80 Хотите продать быстрее?

Продавец
Агентство недвижимости:
Менеджер отдела продаж
email: 531416@atlas58.ru
Показать номер телефона
Пожаловаться
Комментарии:
Добавить